

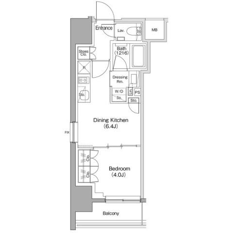
The Park Habio Meidaimae Room 1102 is a modern 1DK apartment offering 29㎡ of efficiently designed living space on the 11th floor of a 12-story building completed in 2022. The layout provides a comfortable separation between the living/dining area and bedroom, creating a sense of privacy and flexibility within a compact footprint. Large windows on a high floor ensure ample natural light and a pleasant sense of openness, while contemporary finishes and practical storage solutions enhance everyday comfort. The apartment is well-suited for singles or couples seeking a balance of functionality and style in a prime Tokyo location. Standard initial costs apply for moving in.
Neighborhood
Situated in the Matsubara area of Setagaya, this residence enjoys a peaceful yet highly convenient setting just three minutes from Meidaimae Station, with Shimotakaido Station also within easy reach. The neighborhood offers a welcoming residential atmosphere, complemented by the presence of everyday conveniences such as Family Mart, 7-Eleven, and the Seiyu Shimotakaido store nearby. Residents benefit from excellent transport links to central Tokyo, making commuting straightforward while enjoying the relaxed charm typical of Setagaya. The area is further supported by local services like the Tokyo Fire Department Suginami Fire Department Eifuku Branch, contributing to a secure and comfortable living environment.