

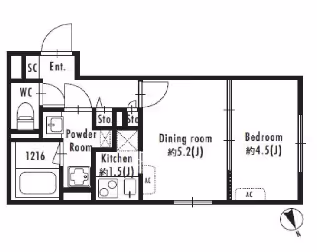
GRANPASEO Nishi-Shinjuku Granpaseo Nishi-Shinjuku 401 is this 1DK apartment offers 30㎡ of efficiently designed living space on the 4th floor of a newly completed four-story building in 2024. The layout provides a clear separation between the bedroom and living/dining area, creating a sense of privacy and flexibility for both relaxation and daily routines. Large windows invite natural light into the interior, enhancing the open feel of the main living space. Modern fixtures and practical storage solutions contribute to a comfortable and convenient lifestyle. As a recently built residence, the apartment features up-to-date amenities and security systems typical of premium Tokyo rentals. Standard initial move-in costs apply, with a straightforward contract period.
Neighborhood
Situated in NishiShinjuku within Shinjuku Ward, this property enjoys a vibrant yet highly accessible urban setting. Residents benefit from quick access to Nishi-Shinjuku Station just three minutes away, with Seibu Shinjuku Station also within easy walking distance, making commuting across Tokyo exceptionally convenient. Daily necessities are close at hand, with My Basket Kita-Shinjuku Tax Office Street Store and FamilyMart Shinjuku Tax Office Street Store nearby, while Sugi Pharmacy Nishi-Shinjuku Medical University Store ensures access to healthcare essentials. The area blends the dynamic energy of Shinjuku with the comfort of well-established local services, making it ideal for professionals seeking both convenience and a lively city atmosphere.