






.avif)
.avif)




.avif)
.avif)
















.avif)















.avif)



















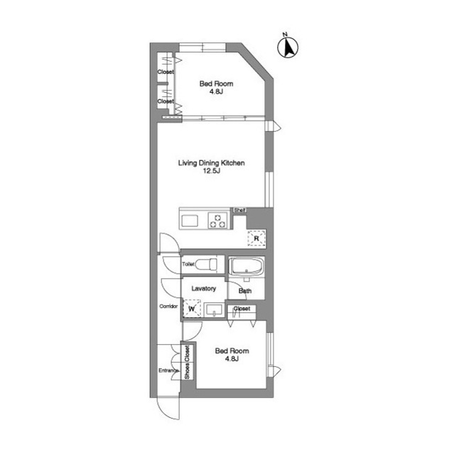
Stylio Sakurashinmachi 203 is this 3LDK apartment offers 86㎡ of well-designed living space on the 2nd floor of a modern 9-story building completed in 2026. The layout provides a spacious living-dining area alongside three versatile bedrooms, ensuring both comfort and flexibility for families or those seeking extra room for work or leisure. Large windows bring in ample natural light, creating a bright and inviting atmosphere throughout the home. Practical features and a thoughtful floor plan support everyday convenience, while secure building entry and standard initial costs help ensure peace of mind for new residents.
Neighborhood
Situated in Shinmachi within Setagaya Ward, the property is just a short walk from Sakurashinmachi Station, offering smooth access to central Tokyo. The area is known for its calm, residential character, blending quiet streets with the convenience of nearby supermarkets, cafés, and essential shops. Setagaya is popular among families and professionals alike, thanks to its leafy avenues, local parks, and friendly community feel. With reliable transport links and a relaxed neighborhood atmosphere, this location provides an appealing balance of urban accessibility and everyday comfort.