


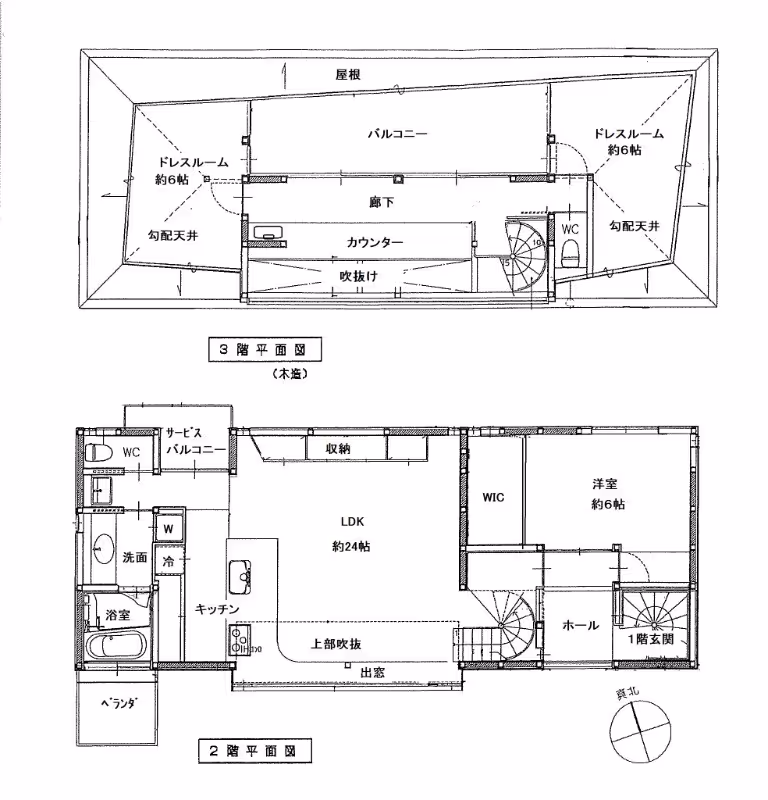
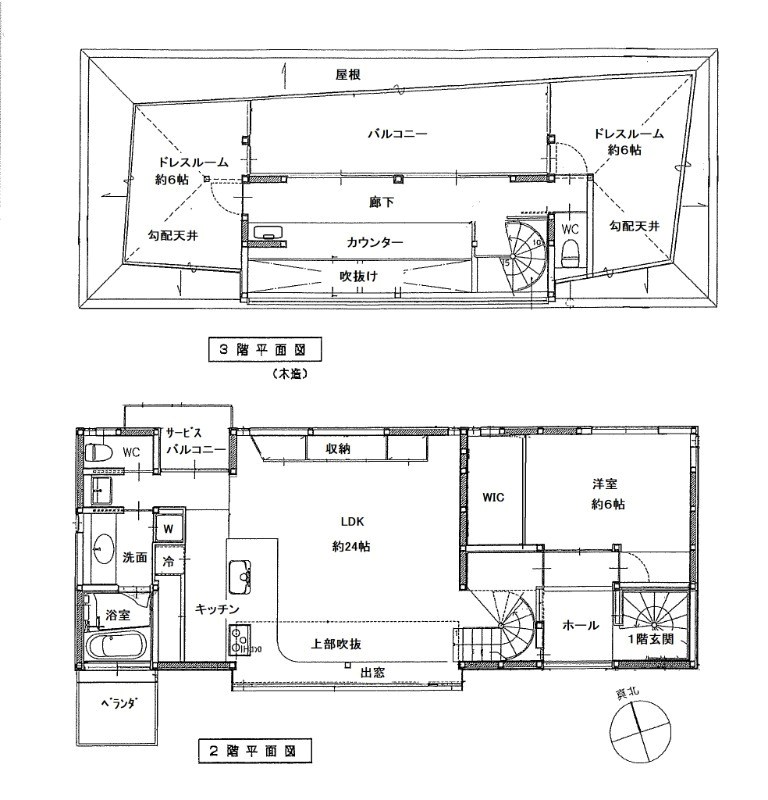
Arubu Shimokitazawa is a spacious 3LDK apartment offering 132㎡ of comfortable living on the 2nd floor of a well-maintained, three-story building completed in 2009. The generous layout provides a clear separation between the living and private areas, creating an inviting sense of openness ideal for both relaxation and entertaining. Large windows throughout the residence allow for ample natural light, while practical room arrangements support a variety of lifestyles. The modern kitchen and expansive living-dining area make everyday life both convenient and enjoyable. Well-proportioned bedrooms and thoughtful storage solutions add to the overall functionality. Standard initial costs apply.
Neighborhood
Situated in Kitazawa, Setagaya, this property enjoys a prime location just a short walk from both Shimokitazawa and Ikenoue stations, offering excellent access to central Tokyo. The vibrant Shimokitazawa Ichibangai shopping street, along with local favorites like Ozeki Shimokitazawa store and Seims Shimokitazawa Pharmacy, provide a lively mix of dining, shopping, and daily conveniences. The area is also home to reputable schools such as Setagaya Ward Ikenoue Elementary School and Setagaya Ward Fuji Junior High School, making it especially appealing for families. Nearby green spaces like Meguro Komaba Park offer a welcome retreat from city life, while the overall neighborhood atmosphere balances urban energy with a relaxed, residential feel.