



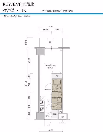
Roygent 9th Dan 205 is a modern 1K apartment offering 30㎡ of efficiently designed living space on the 2nd floor of a 13-story building completed in 2017. The layout provides a comfortable separation between the kitchen and main living area, making it ideal for both relaxation and everyday routines. Large windows invite natural light, enhancing the sense of openness within the apartment. Practical features and a contemporary finish ensure a pleasant living environment, while the building’s recent construction brings peace of mind regarding quality and comfort. Standard initial costs apply for moving in, and the property is well-suited for singles or professionals seeking a central Tokyo location.
Neighborhood
Situated in Kudankita, Chiyoda, this residence enjoys a prime position in one of Tokyo’s most prestigious and convenient wards. The apartment is just a short walk from Kudanshita and Suidobashi stations, offering excellent access across the city. Daily life is supported by nearby amenities such as the FamilyMart Iidabashi 2-chome store and Inageya Iidabashi store, ensuring shopping and essentials are always within easy reach. The presence of Tokyo Teishin Hospital and educational institutions like Fujimi Elementary School further enhances the neighborhood’s appeal. With its blend of urban convenience and a calm residential atmosphere, Kudankita provides an ideal base for enjoying all that central Tokyo has to offer.