




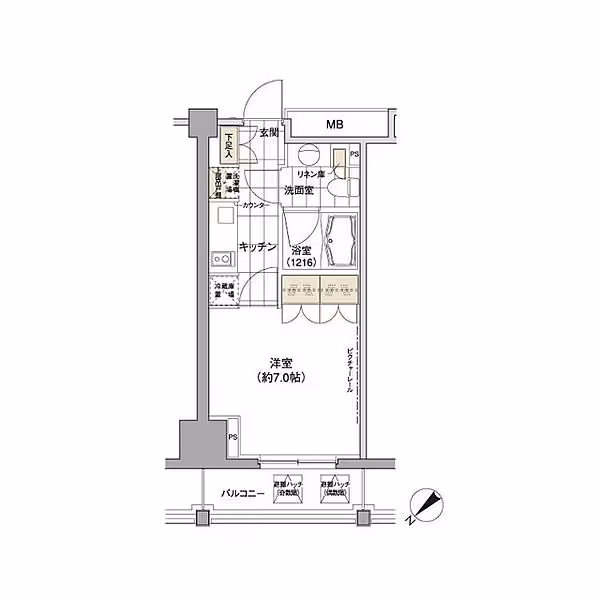
Park Habio Shibuya 806 is a modern 1K apartment offering 24㎡ of efficient living space on the 8th floor of a 14-story building completed in 2012. The layout is designed for maximum practicality, with a clear separation between the living and kitchen areas, making it ideal for singles seeking comfort and functionality in the heart of the city. Large windows invite ample natural light, creating a bright and welcoming atmosphere throughout the home. Quality fixtures and thoughtful design ensure everyday convenience, while the elevated position provides a sense of privacy and quiet above the city bustle. Residents benefit from well-maintained common areas and secure building access. Standard initial costs apply.
Neighborhood
Situated in Shibuya 3-chome, this apartment places you just a four-minute walk from Shibuya Station, with Daikanyama also within easy reach. The surrounding area captures the vibrancy and energy of Shibuya, offering immediate access to daily necessities and conveniences such as FamilyMart Shibuya Police East Store and Tomo's Shibuya Namikibashi store. Presse Shibuya Stream adds a modern touch with its selection of shops and eateries nearby. This location is ideal for those who value both the excitement of city living and the ease of having essential services and transport connections at their doorstep.