





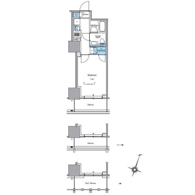
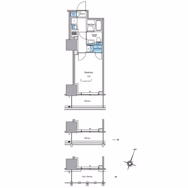
Lephone Progressive Shibuya Hilltop 0604 is a modern 1K apartment offering 26㎡ of efficiently designed living space on the 6th floor of an 18-story building completed in 2022. This residence features a practical single-room layout ideal for comfortable solo living, with a well-proportioned main room and a separate kitchen area to maximize both privacy and functionality. Large windows invite ample natural light, creating a bright and welcoming atmosphere throughout the home. The contemporary construction ensures up-to-date amenities and a sense of security, while the elevated position provides a quiet retreat above the city. Standard initial costs apply, in line with modern Tokyo rental practices.
​
Neighborhood
Situated in the Aobadai area of Meguro, this apartment enjoys a tranquil yet highly convenient setting. The location offers straightforward access to Shinsen Station in just eight minutes on foot, with the vibrant Shibuya district reachable in fourteen minutes, making commuting and city exploration effortless. Meguro is renowned for its leafy streets, stylish cafés, and relaxed residential character, providing a pleasant contrast to the nearby urban energy of Shibuya. This address is well-suited for those seeking a balance between peaceful living and the excitement of central Tokyo.