




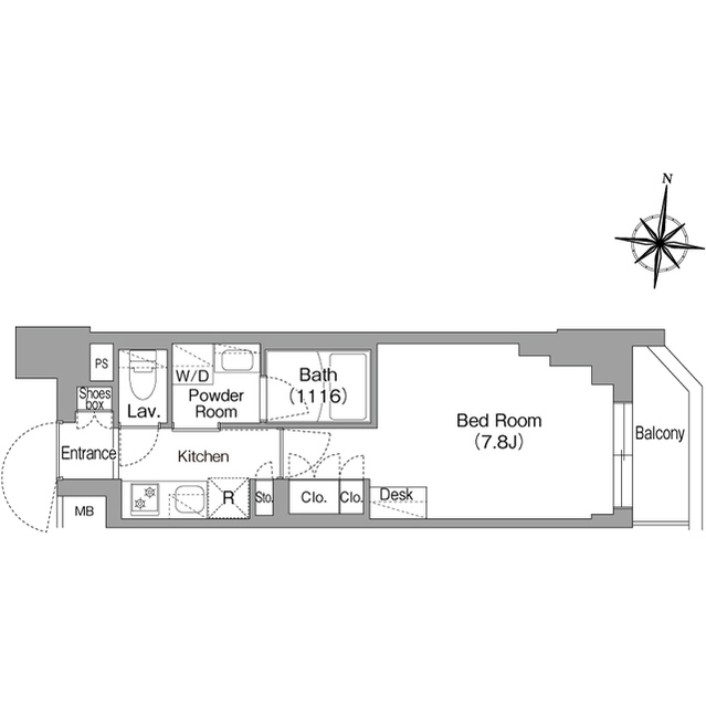
Comforia Live Osaki 503 is a contemporary 1K apartment offering 25㎡ of efficiently designed living space on the 5th floor of a 6-story building completed in 2026. The layout is ideal for singles or professionals, featuring a comfortable main room with a practical separation between the living and kitchen areas. Large windows invite natural light, creating a bright and welcoming atmosphere throughout the day. Modern fixtures and thoughtful details ensure everyday convenience, while standard initial costs apply for moving in.
Neighborhood
Situated in Nishi-Shinagawa, Shinagawa Ward, the apartment enjoys a location that balances urban accessibility with a relaxed residential feel. The area is well-served by nearby Osaki and Togoshi stations, providing smooth connections to central Tokyo and major business districts. Residents benefit from a variety of supermarkets, cafés, and local dining options within easy reach, as well as everyday amenities for a comfortable lifestyle. Nishi-Shinagawa is known for its blend of convenience and calm, making it a practical choice for those seeking both city access and a quieter neighborhood environment.