





.avif)
.avif)




.avif)
.avif)
















.avif)















.avif)



















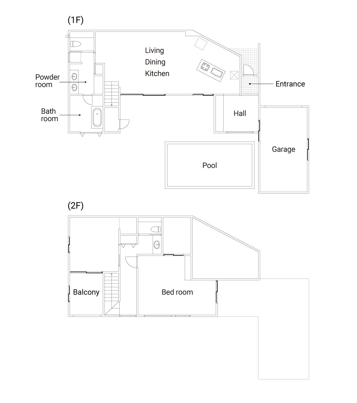
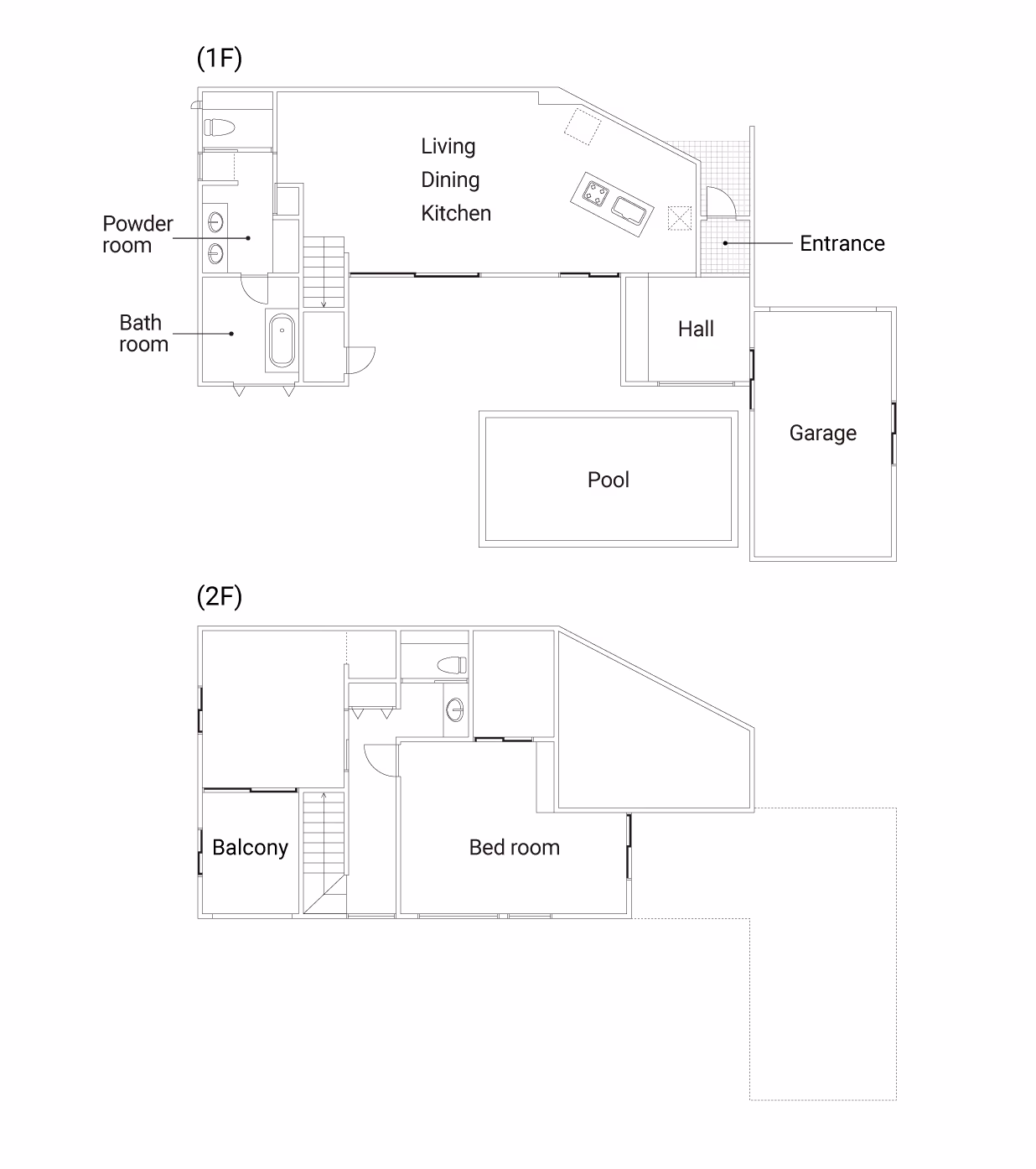
Villa house 102 is a newly built 2LDK villa scheduled for completion in January 2026, designed to deliver an elegant resort lifestyle in one of Ito’s most tranquil elevated neighborhoods. Spanning 189.42㎡ on a generous 399.03㎡ plot, the residence blends refined architecture with functional comfort-featuring a built-in garage equipped with an electric shutter for smooth access during any weather, an expansive private pool, and a spacious 12-tatami-mat wooden deck ideal for outdoor living. The thoughtful layout offers seamless indoor–outdoor flow, generous living areas, and a calm atmosphere surrounded by nature, making it perfect as a luxurious second home or a serene permanent residence.
Neighborhood
Nestled in the green hills of Futo, Ito City, this villa house offers both privacy and convenience, located just a 6-minute walk from Izukyu Futo Station. This prime position ensures effortless access to transportation while maintaining the quiet charm of a residential resort area. Travel from Tokyo Station takes approximately 1 hour and 50 minutes via limited express to Ito, followed by a short transfer, while driving from central Tokyo typically requires around 2 hours and 30 minutes. The surrounding area is characterized by lush natural landscapes, ocean viewpoints, cozy cafés, and easy access to supermarkets and daily essentials. With its balanced connection to urban convenience and the restorative beauty of nature, Futo provides an ideal environment for a refined and peaceful villa lifestyle.