

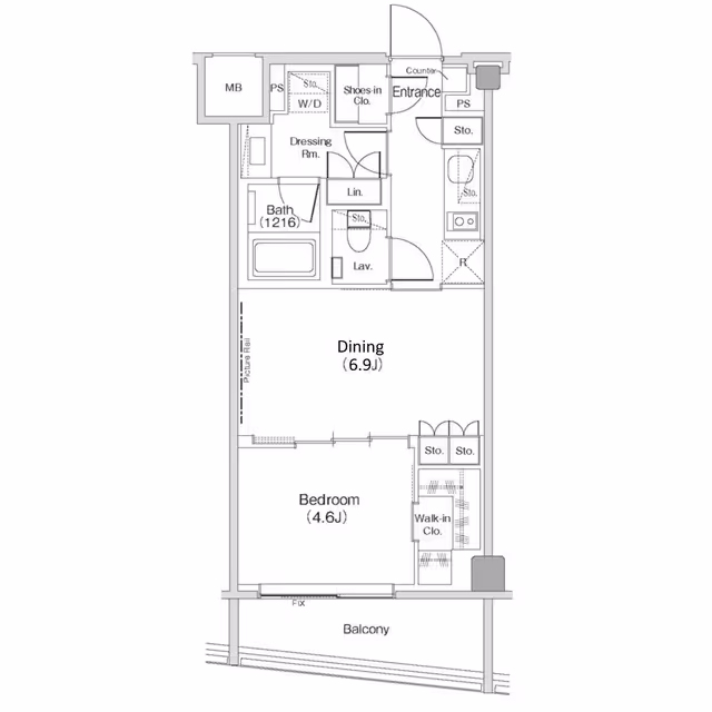
The Park Habio Shibuya Cross 710 this 1DK apartment offers 38㎡ of well-planned living space on the 7th floor of an 11-story building completed in 2022. The layout provides a clear separation between the bedroom and dining-kitchen area, creating a sense of privacy and flexibility for both relaxation and entertaining. Large windows invite natural light, enhancing the open feel of the main living spaces. Modern fixtures and finishes throughout the apartment ensure a comfortable, low-maintenance lifestyle. Residents benefit from the security and convenience typical of a recently built property, with standard initial costs applying.
Neighborhood
Situated in Aobadai, Meguro, this residence enjoys a prime location with easy access to both Shinsen Station in 7 minutes and Ikejiri-Ohashi Station in 11 minutes. The neighborhood is known for its blend of quiet residential streets and proximity to the vibrant dining and café culture of nearby Shibuya and Nakameguro. Meguro’s reputation for leafy avenues and a relaxed yet cosmopolitan atmosphere makes it especially appealing to professionals and international residents. With excellent transport links and a wealth of local amenities, this address offers both tranquility and urban convenience in one of Tokyo’s most desirable wards.
<iframe src="https://www.google.com/maps?q=35.6531978,139.6936833&hl=en&z=16&output=embed" width="100%" height="300" style="border:0;" allowfullscreen="" loading="lazy"></iframe>