Request Viewing
Thank you for filling out the form!
To keep things smooth and efficient, please message us directly using one of the platform below:
Oops! Something went wrong while submitting the form.
No items found.
THE GRANHAUS HANEGI NAVY
Setagaya
,
4-33-26 Daita
1,850,000
JPY/mo
JPY
Management Fee
0
JPY/mo
Deposit:
3,700,000
JPY
Key money:
0
JPY
Layout:
3SLDK
Size:
267
m2
Setagaya-Daita
Station
6
minutes walk
Umegaoka
Station
9
minutes walk

Key Features

No key money
Pet friendly
Air conditioner
Walk-in closet
Autolock
Balcony
Delivery box

Overview

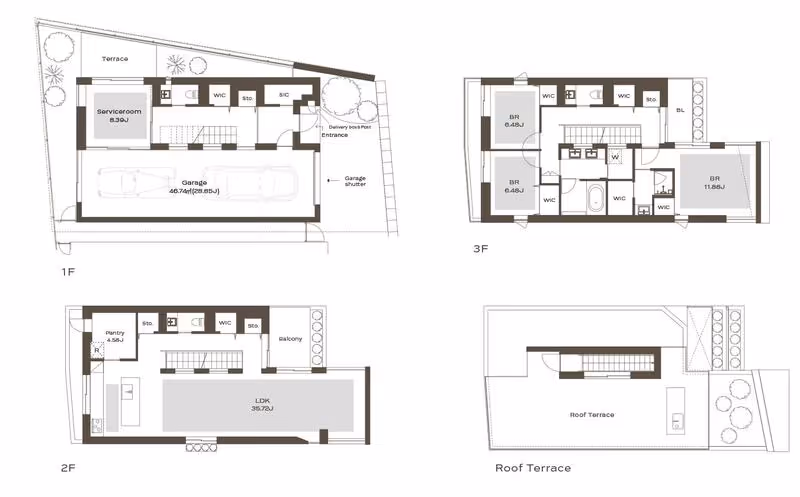
THE GRANHAUS HANEGI NAVY is a newly constructed 3SLDK residence offering an impressive 267㎡ of living space in a quiet corner of Setagaya’s Daita neighborhood. Completed in 2025, this three-story home is thoughtfully designed to balance spaciousness and privacy, with multiple bedrooms, a versatile study or storage room, and generous communal areas ideal for comfortable family living. Expansive windows invite abundant natural light throughout the interior, while the modern layout ensures a seamless flow between living, dining, and kitchen spaces. High-quality finishes and practical features support a premium lifestyle, and standard initial costs apply for moving in.

Neighborhood

Nestled in the residential streets of Daita, Setagaya Ward, the property enjoys a peaceful yet convenient setting. The area is known for its calm, family-friendly atmosphere, with leafy avenues and a strong sense of community. Everyday essentials such as supermarkets, local cafés, and parks are within easy reach, making daily life both relaxed and practical. Excellent access to Setagaya Daita and Umegaoka stations ensures smooth connections to central Tokyo and surrounding districts, while the neighborhood’s blend of tranquility and urban convenience appeals to both families and professionals seeking a balanced lifestyle.

Location

Move-in date
Intitial cost
First month rent
¥
1,850,000
Key Money
¥
0
Management fee
¥
0
Deposit
¥
3,700,000
Guarantor Fee
¥
925,000
~
Fire Insurance
¥
25,000
~
Key Exchange Fee
¥
~
Agency Fee
¥
1,850,000
Campaign discount
- ¥
Total Initial Cost
¥
8350000
Book a viewing
Get in touch to view this property
Agent
Mike Abdullaev
CEO & Founder
Request viewing

Browse more properties

Other units in this building

No items found.