

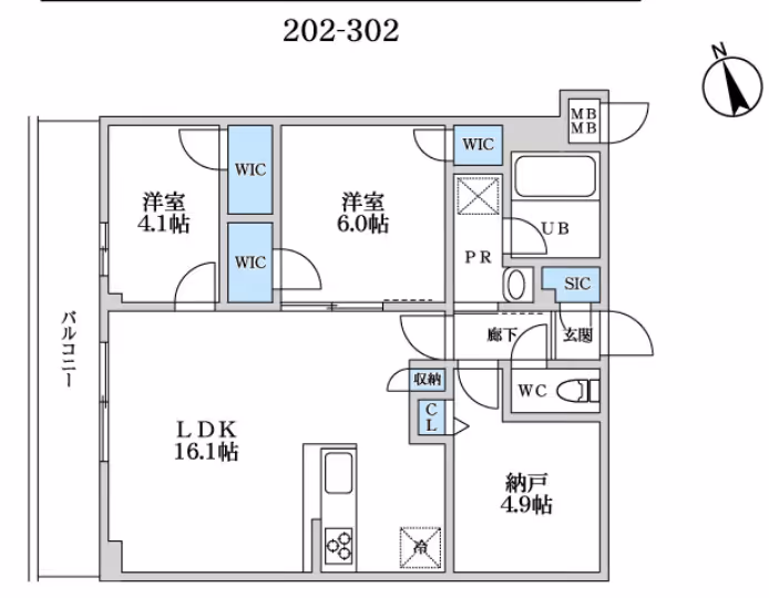
This 3LDK apartment offers 63㎡ of well-organized living space on the 3rd floor of a modern 5-story building completed in 2025. The layout provides three distinct bedrooms alongside a comfortable living-dining area, allowing for both privacy and communal enjoyment. Large windows bring in ample natural light, creating a bright and airy atmosphere throughout the home. Contemporary finishes and a practical floor plan support daily comfort and ease of living. Standard initial costs apply, with a straightforward contract period.
Neighborhood
Situated in the Miyamae area of Suginami Ward, the property enjoys a peaceful residential setting known for its leafy streets and community-oriented feel. Daily conveniences such as supermarkets, local dining options, and cafés are within easy reach, making everyday errands simple. The neighborhood is well-suited for families and professionals seeking a calm environment with access to green spaces. Nearby, Fujimigaoka and Kugayama stations offer smooth connections to central Tokyo, ensuring excellent urban accessibility while maintaining a relaxed suburban charm.