

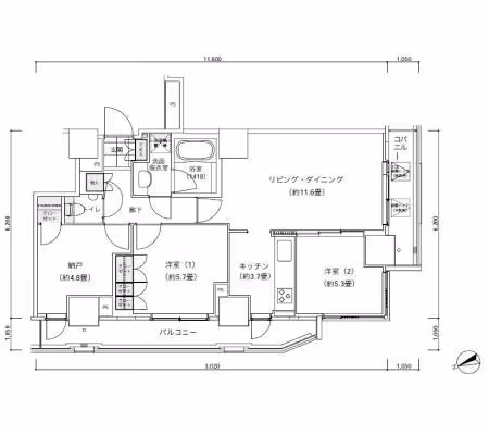
Park Cube Atagoyama Tower 1102 is a 3LDK apartment offering 69㎡ of well-organized living space on the 11th floor of a 31-story building completed in 2007. The layout provides a comfortable separation between the living-dining area and three private bedrooms, making it suitable for families or those seeking extra space for work or guests. Large windows invite ample natural light throughout the home, and the elevated position ensures a pleasant sense of openness. Modern fixtures and practical amenities are complemented by building features designed for security and convenience. Standard initial costs apply.
Neighborhood
Situated in Nishi-Shinbashi, Minato Ward, the property enjoys a prime location within easy reach of both Kamiyacho and Toranomon Hills stations. This area is known for its blend of business and residential character, offering a calm yet highly accessible urban environment. Residents benefit from a variety of nearby supermarkets, cafés, and everyday conveniences, as well as proximity to green spaces and major city landmarks. The neighborhood’s excellent connectivity makes it ideal for professionals, while the peaceful streets provide a comfortable retreat from the city’s bustle.