


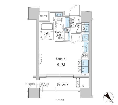
Park Axis Kayabacho 302 is a well-designed 1R apartment offering 26㎡ of efficient living space on the 3rd floor of a modern 14-story building completed in 2012. The open-plan layout maximizes flexibility, allowing for a comfortable blend of living, dining, and sleeping areas within a bright, thoughtfully arranged interior. Large windows invite natural light, creating an airy atmosphere that enhances the sense of space. Quality finishes and practical features support daily convenience, making this residence an appealing choice for singles or professionals seeking a streamlined urban lifestyle. Standard initial costs apply.
Neighborhood
Situated in Shinkawa, Chuo Ward, this property enjoys a prime location within one of Tokyo’s most central and vibrant districts. The neighborhood balances a calm, residential feel with excellent proximity to essential amenities, including supermarkets, cafés, and convenience stores. Both Kayabacho and Hatchobori stations are within easy walking distance, providing quick access to major business and leisure areas across the city. The area is known for its blend of modern living and traditional charm, making it attractive to those who value both convenience and a sense of community. With its central location and reliable transport links, Shinkawa offers an ideal base for enjoying all that Tokyo has to offer.
