


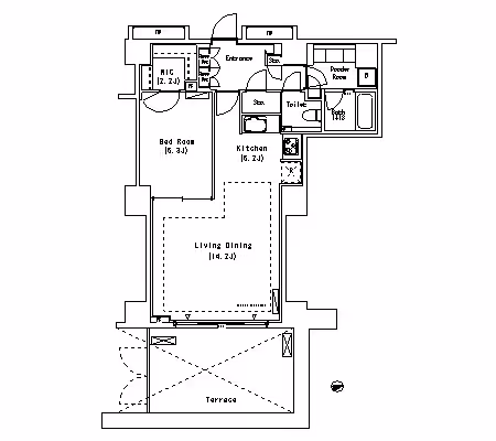
Park Axis Daikanyama 502 is a well-designed studio apartment offering 33㎡ of comfortable living space on the 5th floor of an 11-story building completed in 2008. The open-plan layout maximizes flexibility, providing a sense of spaciousness that is ideal for both relaxation and entertaining. Large windows invite ample natural light, creating a bright and welcoming atmosphere throughout the day. Practical features and a modern finish ensure everyday convenience, while efficient storage solutions help keep your living area organized. Residents benefit from the security and privacy of a mid-rise apartment, with standard initial costs applying for move-in.
Neighborhood
Situated in Ebisunishi, Shibuya, this property enjoys a prime location between Daikanyama and Ebisu, both accessible within minutes on foot. The area is known for its blend of upscale boutiques, stylish cafés, and a relaxed yet vibrant urban atmosphere. Everyday essentials are close at hand, with options like the Lawson Shibuya Daisencho store and Daiei Hatagaya store nearby, while Kosei Central Hospital provides peace of mind for healthcare needs. The neighborhood is well-connected, offering easy access to central Shibuya and the broader Tokyo area, making it an excellent choice for professionals seeking both convenience and a refined residential environment.