


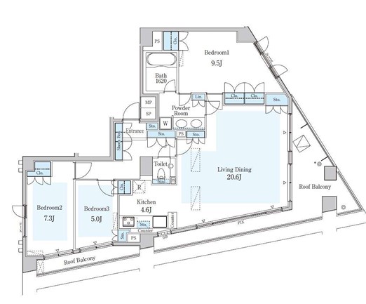
Orchid Residence Roppongi is a spacious 3LDK apartment offering 105㎡ of well-designed living space on the 14th and top floor of a modern building completed in 2002. The layout provides a clear separation between the living and private areas, creating an open yet functional environment ideal for both relaxation and entertaining. Large windows on the upper floor allow for excellent natural light and a sense of openness throughout the home. Practical features and thoughtful planning ensure comfort for families or those seeking extra space for work or guests. Standard initial costs apply for this residence, which combines privacy with the convenience of high-rise living in central Tokyo.
Neighborhood
Situated in the heart of Roppongi, Minato Ward, this address places you within one of Tokyo’s most international and dynamic neighborhoods. Just a short walk from Roppongi and Roppongi 1-chome stations, the location offers swift access to major business districts and cultural attractions. Everyday essentials are close at hand, with Motomachi Union and Seijo Ishii supermarkets nearby, as well as convenient options like Family Mart and Don Quixote for daily shopping. The area’s blend of upscale amenities, green spaces such as West Park, and vibrant city life creates a highly desirable environment for both professionals and families.