



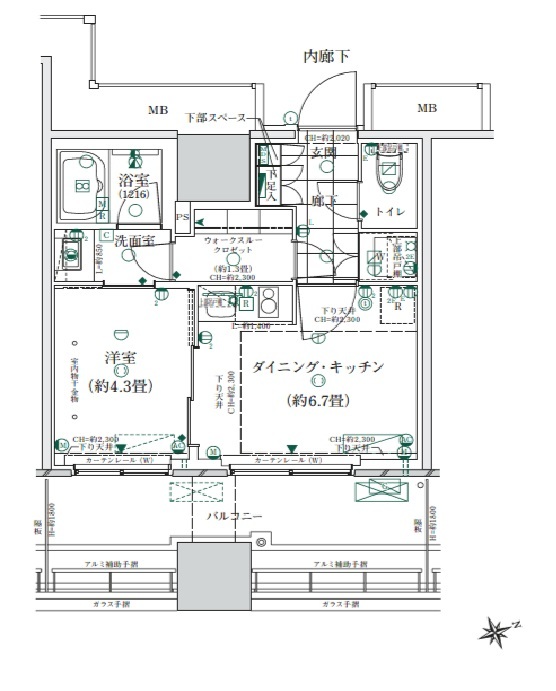
Laurel Tower René Hamamatsucho 0315 is a modern 1R apartment offering 25㎡ of efficiently designed living space on the 3rd floor of a 23-story building completed in 2020. The open-plan layout creates a sense of spaciousness, with large windows allowing for ample natural light throughout the day. Contemporary finishes and a streamlined design make the most of the compact footprint, providing a comfortable and functional environment for urban living. Secure entry and well-maintained common areas contribute to peace of mind, while standard initial costs apply.
Neighborhood
Situated in Kaigan 2-chome within Minato Ward, this residence enjoys a prime location close to the waterfront and key business districts. The neighborhood is known for its modern high-rises and convenient city access, balanced by a calm, residential atmosphere. Daily necessities such as supermarkets, cafés, and convenience stores are within easy reach, making everyday life smooth and practical. With Hamamatsucho Station just a short walk away, residents benefit from excellent connectivity to major Tokyo hubs and the wider metropolitan area. This area is well-suited for professionals seeking a blend of urban convenience and a relaxed, contemporary setting.
