



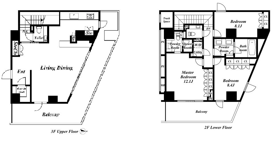
Forest Terrace Toriizaka is a refined 3LDK apartment offering 150㎡ of generous living space on the 3rd floor of an eight-story building completed in 2015. The thoughtfully designed layout provides distinct separation between bedrooms and living areas, ensuring privacy and comfort for families or those seeking flexible use of space. Expansive windows invite ample natural light throughout the home, while the spacious LDK area is ideal for both daily relaxation and entertaining. Modern construction ensures efficient insulation and soundproofing, contributing to a peaceful urban retreat. Practical storage solutions and high-quality finishes add to the sense of everyday ease. Standard initial costs apply for this premium residence.
Neighborhood
Set in the prestigious Roppongi 5-chome area of Minato Ward, the property enjoys a prime location with convenient access to both Azabujuban Station in just four minutes and Roppongi Station within eleven minutes. The surrounding neighborhood blends international flair with local charm, offering a vibrant yet sophisticated urban lifestyle. Residents can enjoy the nearby Azabu Juban Shopping District and the gourmet selection at Seijo Ishii Azabujuban store, while the tranquil Roppongi 6-chome green space provides a welcome natural respite. With upscale shopping, dining, and daily conveniences such as Daiei Azabujuban store all within easy reach, this address offers an exceptional balance of connectivity and comfort in central Tokyo.