



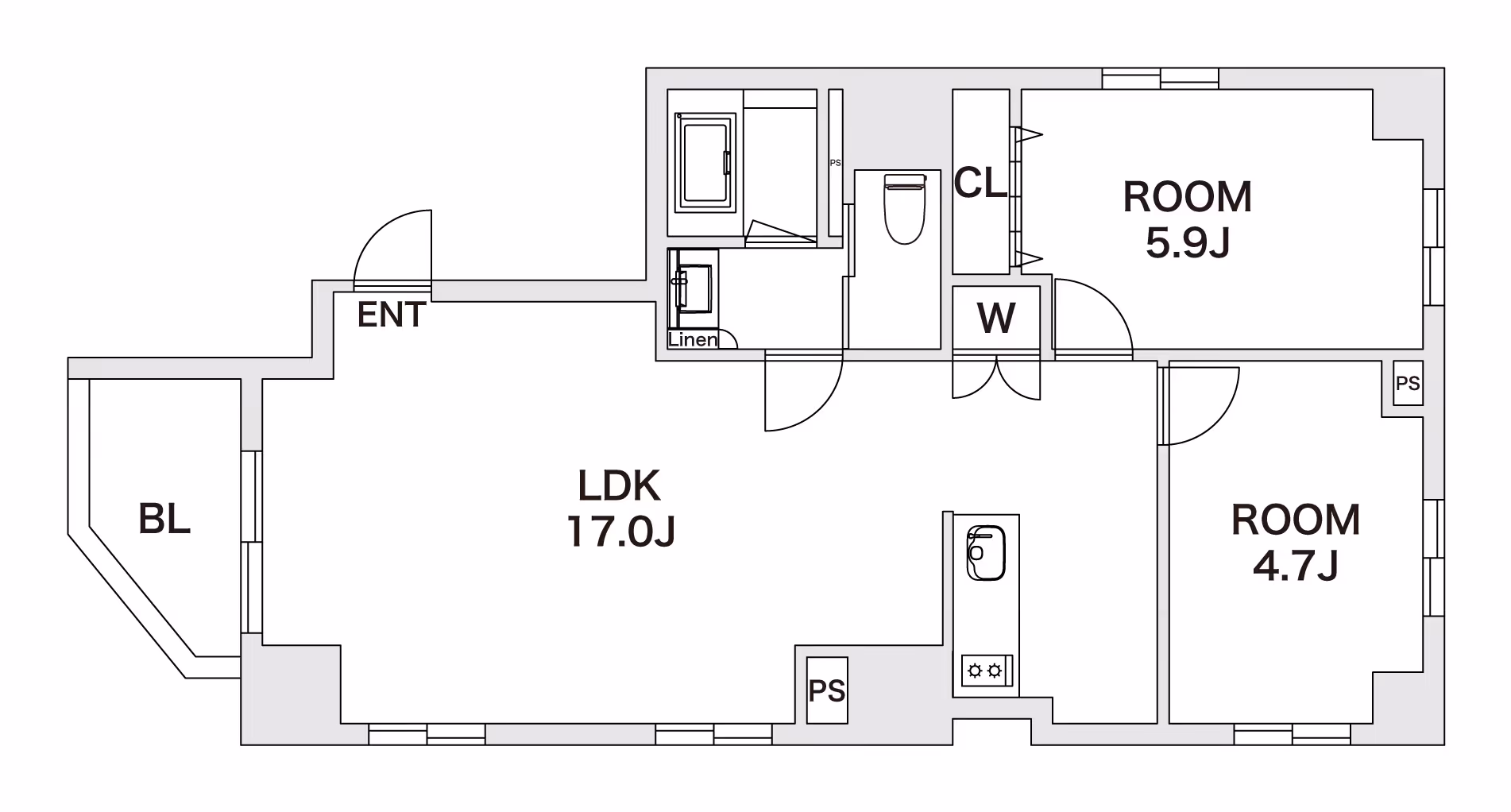
Esperanza Jingumae 301 is a contemporary 2LDK apartment offering 68㎡ of thoughtfully designed living space on the 3rd floor of a 10-story building completed in 2024. The layout provides a comfortable separation between private bedrooms and a generous living-dining area, ensuring both privacy and openness. Large windows invite ample natural light, contributing to a bright and airy atmosphere throughout the home. Modern fixtures and finishes complement the practical floor plan, making daily life both convenient and comfortable. Standard initial costs apply, reflecting the quality and location of this newly built residence.
Neighborhood
Situated in the heart of Jingumae within Shibuya Ward, this property enjoys a prime location just minutes from Gaienmae and Omotesando stations, offering excellent access to central Tokyo. The immediate area is known for its cosmopolitan flair, blending upscale shopping and dining with a relaxed neighborhood feel. Residents benefit from proximity to destinations such as the Aoyama Shopping Center and Actus Aoyama store, as well as everyday conveniences like the FamilyMart Jingumae 3-chome store and Biocebon Gaien Nishi-dori store. With its vibrant surroundings and easy transport connections, Esperanza Jingumae offers an ideal balance of urban energy and residential comfort.