
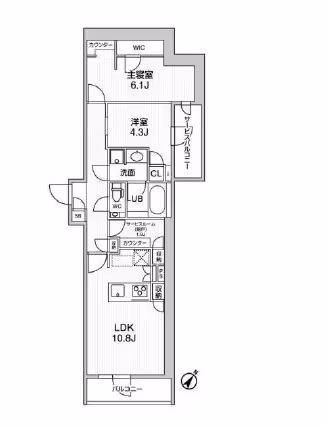
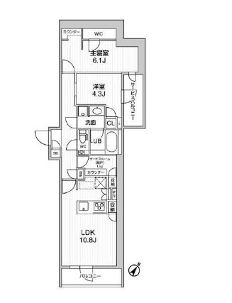
This 2SLDK apartment offers 63㎡ of well-designed living space on the first floor of a modern four-story building completed in 2025. The layout provides a comfortable separation between living and private areas, with an additional service room that can flexibly serve as a study or storage. Large windows invite natural light into the main living and dining area, creating a bright and welcoming atmosphere. Practicality is evident throughout, with efficient room arrangements and thoughtful features that support daily comfort. The apartment is ideal for those seeking a contemporary home in central Tokyo, and standard initial costs apply for moving in.
Neighborhood
Situated in Hatsudai, Shibuya, this residence enjoys a prime location just two minutes from Hatsudai Station, ensuring swift access to central Tokyo and beyond. The local area blends urban convenience with a relaxed neighborhood feel, offering a variety of cafés and dining options such as Doutor Coffee Shop Hatsudai South Exit and Hidakaya Hatsudai South Exit Store. Cultural and educational amenities like the fuzkue book store Hatsudai and Eiko Seminar Hatsudai School are also close by, enriching the community atmosphere. With easy access to both local services and transport, this address offers a balanced city lifestyle in one of Tokyo’s most dynamic wards.