


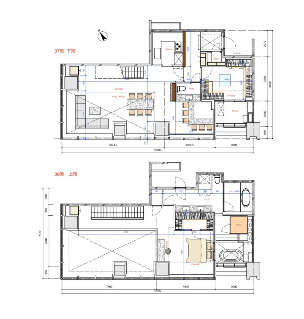
Occupying the top two floors (37th–38th), this exclusive penthouse represents the pinnacle of City Tower Azabujuban living. Fully renovated by December 2025, the residence blends contemporary design with refined luxury, featuring marble flooring across the living areas, newly installed wall finishes, custom-built furniture, and carefully curated lighting and art installations. The entrance is highlighted by a sleek glass-fronted shoe cabinet, while the bathroom and wash areas have been fully upgraded with modern fixtures, complemented by a newly installed toilet and fitted curtains throughout the home. Positioned as a corner residence, the penthouse benefits from abundant natural light and sweeping city views, creating a dramatic yet comfortable living environment.
This property is ideally suited for buyers seeking a prestigious primary residence or a high-end investment in central Tokyo. With its prime location, extensive building amenities, and fully turnkey condition, the penthouse offers a rare combination of lifestyle appeal, architectural presence, and long-term asset value in one of Tokyo’s most internationally recognized residential towers.
The residence offers hotel-grade services and amenities, including concierge support from 8:00 to 22:00, 24-hour on-site management, a community hall and children’s room on the basement level, guest suites on the 3rd floor, and expansive sky lounges on the 24th and 25th floors. A dedicated coach entrance and guest parking further reinforce the building’s prestige and functionality. Interiors throughout the tower are designed with a clean, modern aesthetic—polished yet understated—paired with advanced security systems that meet international standards. The surrounding area is also positioned for long-term growth, with the Mita Koyamacho West District Redevelopment scheduled for completion around 2027, adding further urban value and infrastructure enhancements to this already established district.