



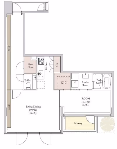
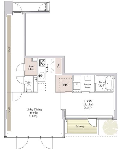
This 1LDK apartment offers 62㎡ of contemporary living space on the top floor of a newly constructed four-story building completed in 2024. The thoughtfully designed layout separates the bedroom from the living and dining area, creating a sense of privacy while maintaining an open and airy atmosphere throughout. Expansive windows allow for ample natural light, enhancing the spacious feel and providing a comfortable environment for both relaxing and entertaining. Modern fixtures and finishes contribute to a refined, low-maintenance lifestyle, while practical storage solutions ensure everyday convenience. Residents benefit from the peace of mind that comes with a new build, and standard initial costs apply.
Neighborhood
Situated in Takanawa, Minato Ward, this residence enjoys a prime location just a four-minute walk from Shinagawa Station, offering excellent access to central Tokyo and beyond. The neighborhood blends international connectivity with local charm, featuring convenient amenities such as the 7-Eleven Shinagawa Prince Hotel Store and Linkos Takanawa store for daily shopping needs. Educational institutions like Takanawadai Elementary School and Takamatsu Junior High School are also nearby, supporting a well-rounded urban lifestyle. With Shinagawa’s vibrant transport hub and Minato’s cosmopolitan atmosphere, residents can enjoy both convenience and a sense of community in this sought-after area.