

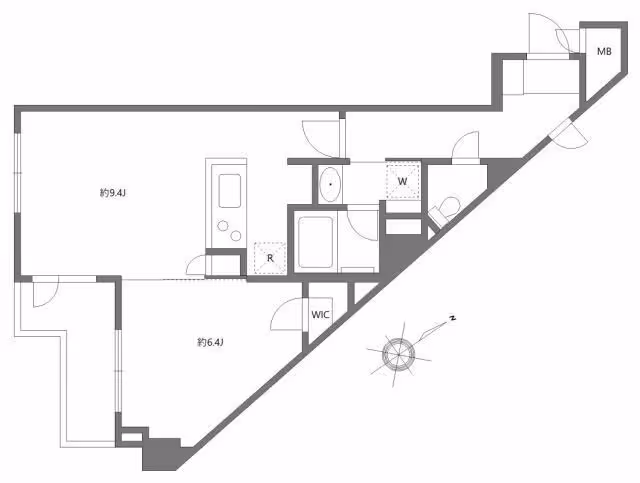
Artiza Jiyugaoka is a modern 1LDK apartment offering 45㎡ of comfortable living space on the 3nd floor of a five-story building completed in 2023. The layout provides a clear separation between the living area and bedroom, ensuring both privacy and a sense of openness. Large windows allow for ample natural light, creating a bright and inviting atmosphere throughout the home. The living-dining area is well-suited for both relaxation and entertaining, while the efficient floor plan makes everyday life practical and convenient. Contemporary fixtures and finishes contribute to a refined, low-maintenance lifestyle. Standard initial costs apply, with a straightforward contract process.
Neighborhood
Situated in Todoroki, Setagaya, this residence enjoys a peaceful yet accessible location in one of Tokyo’s most popular residential wards. Jiyugaoka Station is within a 15-minute walk, while Oyamadai Station is just 13 minutes away, providing excellent connectivity to central Tokyo and beyond. The neighborhood features a blend of daily conveniences and local charm, with spots like the 7-Eleven Setagaya Nakamachi 3-chome store and Drug Papas Setagaya Nakamachi store nearby for everyday essentials. Residents can also enjoy a leisurely coffee at Ueshima Coffee Store Okusawa Store or explore the dining options at Restaurant La Butte Boise. The area’s calm, leafy streets and proximity to essential services make it particularly appealing for those seeking a relaxed yet connected Tokyo lifestyle.