




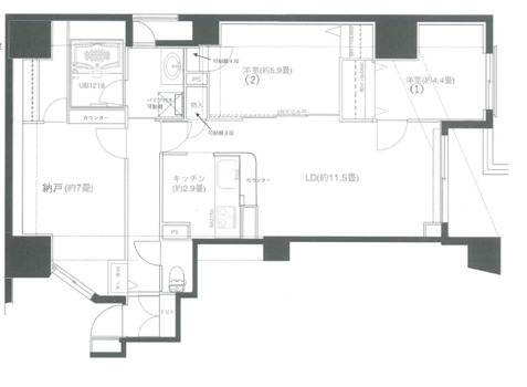
This 3LDK apartment offers 74㎡ of well-planned living space on the 6th floor of a 14-story building completed in 1999. The layout provides a comfortable separation between the living-dining area and three private bedrooms, making it suitable for families or those seeking extra space for work or guests. Large windows bring in ample natural light, while the practical design ensures ease of daily living. Modern conveniences and a sense of openness enhance the overall atmosphere. Standard initial costs and contract terms apply.
Neighborhood
Situated in Hiranuma, Yokohama’s Nishi Ward, the property enjoys a convenient urban setting with access to both Yokohama and Takashima Town stations within a short walk. The neighborhood blends residential calm with the vibrant energy of central Yokohama, offering easy access to shopping, dining, and daily necessities. Local supermarkets, cafés, and parks are all within reach, supporting a comfortable city lifestyle. With excellent transport links, residents can easily connect to major business and entertainment districts throughout Yokohama and beyond.